Nemovitosti

Garsoniéra na prodej ve Štěnovicích s vlastním parkovacím stáním

2.790.000 ,-
Celkem 17 fotografií, zobrazit všechny
Prodejce:
realitní makléř: Vladislav Štrbáň
Vladislav Štrbáň
telefon: +420 608 181 484
v.strban@realitynil.cz

Garsoniéra na prodej ve Štěnovicích s vlastním parkovacím stáním

2.790.000 ,-
Popis nemovitosti:

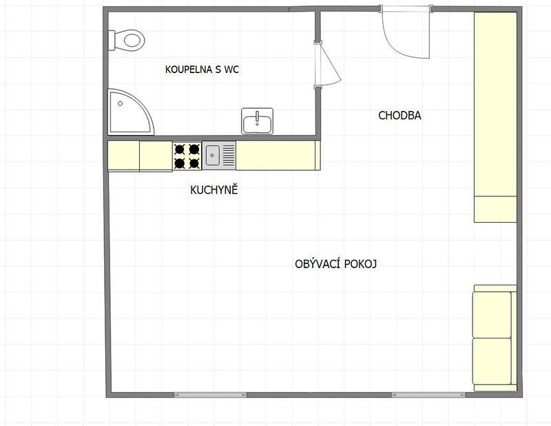
Nabízíme k prodeji garsoniéru o velikosti 26,9 m2 v cihlovém bytovém domě v obci Štěnovice s vlastním parkovacím stáním přímo před domem.
Bytová jednotka se nachází v 2.NP ze 4 NP malého bytového domu. Byt sestává z obývacího pokoje s kuchyňským koutem, předsíně, koupelny a WC. K bytu náleží i sklep v přízemí domu a jedno venkovní parkovací stání v uzavřeném dvoře se zahradou.

Byt je vybavený kuchyňskou linkou, ledničkou a digestoří.
Koupelna disponuje sprchovým koutem, WC a umyvadlem. Ohřev vody zajištuje el. bojler a vytápění pak plynové těleso WAW. Podlahy jsou plovoucí v kombinaci s dlažbou.

Dům je starý 20 let, jsou zde plastová okna, má vlastní kamerový systém, disponuje kolárnou a sušárnou. Vjezd do rezidenčního areálu je zabezpečen závorou.

Naše hodnocení: bezvadný stav bytu i domu, velké společné prostory k užívání, vlastní parkovací stání, krásný byt v klidné lokalitě s výbornou dojezdovou vzdáleností do Plzně. Doporučujeme pro vlastní bydlení i jako investici na pronájem.
 

Typ nemovitosti:
Byt
Číslo nemovitosti:
233
Operace:
Prodej
Vlastnictví:
Osobní
Adresa:
Štěnovice
Čižická 516
Číslo bytu:
21
K nastěhování od:
8.12.2025
Plocha podlahová:
27 m2
Plocha sklepa:
3 m2
Podlaží:
2. podlaží z 4 podlaží celkem
Stav objektu:
Velmi dobrý
Konstrukce:
Cihlová
Umístění objektu:
Klidná část obce
Komunikace:
Asfaltová
Stáří objektu:
2005
Vydaný certifikát:
C - Úsporná
Typ certifikátu:
vyhláška č. 148/2007 Sb.
Je zobrazena tato GPS souřadnice:
49° 40' 10.488"N, 13° 23' 57.876"E

Finanční kalkulačka

Líbí se Vám tato nemovitost, ale nemáte v současné době dostatek finančních prostředků? Rádi Vám poskytneme možnost financování.


Částka:

Úrok:
%

Doba splácení:
let

Měs. splátka: